Please read Clarendon & Greystones Page for Foreword and Introduction first. (And click on images to improve quality)
All three books in The Trilogy have been deposited in the West Yorkshire Archives, Newstead Rd., Wakefield; Ossett Library, Station Rd., Ossett: and the South Ossett Triangle Book has also been deposited at the Christ Church Parish Office, on Vicar Lane Ossett. Summaries have also been placed on the Ossett History Website (www.ossett.net)
THE HISTORY OF GREYSTONES HOUSE
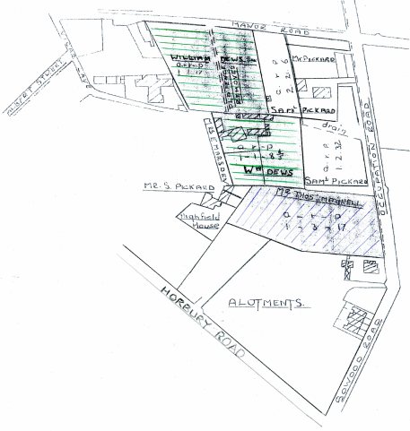
OLD PLAN OF SOUTH OSSETT
OSSETT INCLOSURE AWARD 1807/1813
This shows that the Duke of Leeds was awarded the Plot on which Greystones House would eventually be built
1813 ALDERSON & LUMB to Sam’l AUDSLEY & Thomas LOFTHOUSE POTTER – Gent, cottage/dwelling, land etc., bounded by Benj. MARSDEN; David WILBY & John WILBY, now in the occupation of Sam’l AUDSLEY 1 acre 8 perches (Ref: 1813 FZ 136 168).
LAND CHANGES IN 1813
In May 1820 a Memorial of certain Indentures, dated 26th & 27th May, was registered between Samuel AUDSLEY and Thomas Lofthouse POTTER of the 1st part and Elizabeth RAWLINSON of New Sleaford, Lincs. The other part, concerning the dwelling (No 99) and land measuring 1 acre 8 perches and the allotment adjoining it, measuring 1 acre 18 perches purchased from the Commissioners of the Ossett Inclosure Act by Samuel AUDSLEY. (Ref: 1820HC 590 635) January 1822 Lease & Release between Garbutt FISHER of Beeston, Woolstapler 1st part Thos. SHAW of Shitlington, farmer, 2nd. part Thos. MITCHELL, of Ossett, clothier 3rd Part, Joseph MITCHELL of Ossett 4th part. Land on Giggal Hill 1 acre 1 rood & 4 perches – Lot 10 Inclosure Act., adjoining Lot 9, late in the occupation of Isaac WILBY & his assigns & undertenants. And also that other piece of land in Ossett heretofore part of the waste land 3 roods 16 perches late in the occupation of the said Isaac WILBY (Ref: 1822 HO 4 4)
LAND CHANGES IN 1822
WILL OF CHARLES SCOTT- Died 1826
1831 March 23rd RAWLINSON TO MITCHELL Mar 18th & 19th John Barton, Gent, Lincoln, surviving Executor & Devisee in the Last Will of Ann RAWLINSON, formerly of New Sleaford, widow and Thomas RAWLINSON of Corby, eldest son & heir of John ‘Sutton’ RAWLINSON, late of New Sleaford, who was the eldest son & heir at law of the said Ann RAWLINSON, by Samuel? RAWLINSON, late husband, deceased and Elizabeth RAWLINSON of New Sleaford, spinster of the 1st Part and Nathan MITCHELL of Ossett Common, Parish of Dewsbury, Yorks, Clothier, the other Part. Of and Concerning all that cottage dwellinghouse with outbuildings foldstead gardens and appurtenances adjacent, belonging, occupied and also that allotment or parcel of land adjacent situate and being on Ossett Common, near a place called Giggal Hill and containing 1 acre 8 perches, bounded by land late of the Duke of Leeds sold to Benjamin MARSDEN by land sold to David and Isaac WILBY and Samuel AUDSLEY by allotments of Thomas MITCHELL and John CRAVEN. ALSO that other piece of land adjoining the last, containing 1 acre 18 perches, purchased by the said Samuel AUDSLEY, late in the occupation of William ARMITAGE but now by John ELLIS his assigns etc. together with all rights…..(Ref: 1831 KZ 249 229)
LAND CHANGES 1831
THE WILL OF FRANCIS WILBY signed 24th October 1839. Died 22nd February 1840. Will proved 31st July 1840 (Sworn under £100). His land passed to Susannah and Abram PICKARD.
Abram PICKARD, Ossett Common, Cloth Manufacturer and Susannah (nee SCOTT) his wife 1st Part; Samuel PICKARD, Clothier, 2nd Part John NETTLETON, Gent 3rd part: And also all that other piece, parcel of land situate at Giggal Hill marked LOT 9 and containing by estimation 1 acre 22 perches in the occupation of Abram PICKARD, and also of and including all houses, outhouses etc., upon the land and herewith all pews, seats and sittings in the Chapel of Ossett, etc.(Ref: 1841 OF 40 30)
LAND CHANGES IN 1841
1845 Samuel PICKARD to Samuel SCOTT and his Trustees; John NETTLETON 1st Part; Sam’l PICKARD 2nd part; Abram PICKARD & Susannah. Indenture of Release 11 Apr 1845: Conveyance of Freehold Estates as a Lease and Release between John NETTLETON of Wakefield, Gent 1st part Samuel PICKARD of Ossett Common, clothier 2nd part Abram PICKARD & Susannah his wife, clothier 3rd part Samuel SCOTT, Ossett Common, clothier 4th part Joseph Bayldon RAYNER of Horbury, Gent 5th part: Of and concerning all or as much that is of freehold nature & held by Deed of and all that Messuage Dwellinghouse or Tenement, now in 2 dwellings situate on Ossett Common aforesaid with the Barn Shop & other outbuildings. And also that Croft or parcel of land belonging & adjoining all in the occupation of the said Abram PICKARD and his undertenants and also and in all those 4 dwellinghouses & cottages situate near the said messuage & hereditaments and in the several occupations of Francis NORTH; Nathan WILBY; George LAYCOCK & Edward SCOTT: And all that Close of land lying & being in Ossett & called the Upper Cross Close, containing 3 acres & upwards now in the occupation of Abram PICKARD and also all that piece of land situate at Giggal Hill containing 1 acre & 22 perches approx. In the use of the said Abram PICKARD and also that undivided 5th part of land in all that close piece or parcel of land situate at Ossett and called the Near Close with the footpath therein and now in the occupation of Samuel SCOTT. (Ref: PF 108 106) (MIDDLE COMMON)
LAND CHANGES IN 1845
1854 Jun 30th
Nathan MITCHELL, Ossett, Clothier 1st Part William GARTSIDE Ossett, Clothier the other Part All that messuage or dwellinghouse with outbuildings, foldstead garden, conveniences adjoining & therewith occupied by the said Nathan MITCHELL & also all that allotment or parcel of land adjoining & there situate being on Ossett Common….near Giggal Hill and containing altogether with the scite of the said messuage or dwellinghouse & outbuildings 1 acre & 8 perches approx., bounded by land late of the Duke of Leeds, sold to Benjamin MARSDEN by land sold by the Commissioners executing the Ossett Inclosure Act to David WILBY & Isaac WILBY & Samuel AUDSLEY by allotments of Thomas MITCHELL & John CRAVEN. also all that other allotment plot piece or parcel of land or ground lying and being adjoining to the last mentioned & described allotment land containing by survey 1 acre & 18 perches & which said last mentioned allotment of land was purchased by Samuel AUDSLEY of the Commissioners & all of which said allotments of land & premises were formerly in the occupation of William ARMITAGE, afterwards of John ELLIS but now in the possession of the said Nathan MITCHELL together with the rights, members & appurtenances (Ref: 1854 SQ 61 68 -see also 1862 WU 523 571 and 1864 XR 658 756)
LAND CHANGES 1854
1854 Oct 27th
Joseph MARSDEN, Storrs Hill, Skinner & Ellen his wife 1st Part; John HARROP of Ossett Common, Woollen Cloth Manufacturer 2nd Part; Nathan MITCHELL of Ossett Common, Farmer, 3rd Part All that parcel of land etc……… 1 Acre 25 perches; east by land awarded to the Duke of Leeds; west by Horbury Bridle Road; north by James CONINGTON, Joseph LOFT & Elizabeth CODD; south by Joshua HAIGH the younger and Thomas MITCHELL, awarded to the late John CRAVEN, Ossett Inclosure Award – and subsequently passed to William LEE. (same details as LEE to MARSDEN re. land details and all other tithes belonging to Joseph MARSDEN and premises & appurtenances (Ref: SR 234 251)
LAND CHANGES 1859
1864 March 10th Memorial of an Indenture dated 9/3/1864 between William GARTSIDE of Ossett, Dyer of the 1st part; Nathan MITCHELL of Ossett, Farmer of the 2nd Part and Samuel PICKARD of Ossett, Clothier of the 3rd part. ………..Firstly all that messuage or dwellinghouse with the outbuildings foldstead garden and conveniences thereto adjoining and therewith occupied by the said Nathan MITCHELL and also all that allotment or parcel of land adjoining thereto situate and being on Ossett Common, Ossett aforesaid at or near a place called Giggal Hill and containing altogether with the scite? of the said messuage or dwellinghouse & outbuildings 1 acre and 8 perches (Land where Greystones was built)** approx. bounded by land late of the Duke of Leeds sold to Benjamin MARSDEN by land sold by the Commissioner executing the Ossett Inclosure Act to David & Isaac WILBY and Samuel AUDSLEY and by allotment of Thomas MITCHELL and John CRAVEN also all that other parcel of land lying adjoining to the last mentioned allotment containing by survey 1 acre & 18 perches, purchased by the said Samuel AUDSLEY of the Commissioner under the Inclosure Act which were formerly in the occupation of William ARMITAGE, then John ELLIS but now by Nathan MITCHELL. Secondly all that parcel of land on Ossett Common containing approx. 2 roods & 12 perches being a moiety of a close of land purchased by Charles SCOTT (Inclosure Act Lot 11) bounded on or towards the North by the other moiety or close purchased by George PICKARD of the representative of George SCOTT on or towards the East by an occupation road leading from Ossett to Horbury on or towards the South by part of the premises firstly described on or toward the West by property belonging to the Representative of the late Joseph MITCHELL dec’d, now Nathan MITCHELL. Thirdly all that land or ground situate on Ossett Common containing 850 sq yds – part of a piece of land purchased by Benjamin MARSDEN dec’d of the Lord of the Manor of Wakefield & devised by his Will to Hannah MARSDEN which is bounded partly by the garden & other premises forming part of the premises firstly before described by the property late belonging to Mr. LEE, now to John HARROP, partly belonging to Henry Castile SCOTT and partly by the other portion of the said allotment so devised to Hannah MARSDEN & also all the erections & buildings now erected & built upon this land & said hereditaments & premises described once in the possession of Nathan MITCHELL together with appurtenances. ( Ref: XR 658 756)
1866 May 25th
SCOTT TO DEWS Henry Castile SCOTT First Part ; Samuel PICKARD Second Part William DEWS, Co- partner of Samuel PICKARD; land at Giggal Hill 1 acre & 22 perch bounded Eastward by an allotment (Inclosure Award) to Isaac WILBY & now belonging to Joseph MITCHELL. Westward by allot. awarded respectively to Duke of Leeds & Joshua MOSS the younger, & now belonging to the Trustees of South Ossett School, Mr Joseph MOSS & others. Northwards by the Horbury Rd., & Southwards by part of the allotment awarded to the Duke of Leeds & now Ellen MARSDEN and the said Samuel PICKARD & which said perches of land to be hereby granted is now or formerly known as TENTER CROFT & now occupied by Thomas HUNTINGTON, his undertenants & assignees together with the appurtenances. (Ref ZH 54 60) (MIDDLE COMMON?)
1866 Dec 21st
Joseph MITCHELL to William DEWS All that freehold piece of land on Giggal Hill in Ossett containing by survey 1acre 1rood & 6perches, Lot 10 (Incl. Act), adjacent to Lot 9, formerly occupied by Isaac WILBY, assigns & undertenants of Joseph MITCHELL, son of Thos. (lately dec’d.) in occupation of John HARROP, his assigns or undertenants, but now Joseph MITCHELL together with appurtenances (Ref ZH 639 629)
1866 William DEWS & OTHERS to Samuel PICKARD – Same information as above ( Ref: ZH 639 630 )
LAND CHANGES 1866
Leeds Mercury Newspaper Sept 29th 1877
DISSOLVING OF PARTNERSHIP BETWEEN SAMUEL PICKARD AND WILLIAM DEWS
1877 Sep 28th
Samuel PICKARD the 1st Part and William DEWS the other Part Plot of Freehold land on Ossett Common 1 A 1R 8 and 4 fifths perches – bounded northwards partly by land the property of William DEWS & partly by land then lately the property of William DEWS but now (by recent sale & conveyance of the said Samuel PICKARD), towards the East by other parcels of the hereditaments comprised in and conveyed by the thereinafter recited Indenture; towards the south partly by land belonging to Thomas MITCHELL & part by land belonging to Samuel PICKARD; west by land then or late the property of Ellen MARSDEN and all that messuage or dwellinghouse, washhouse sheds, weaving sheds, warehouse, burling house & other buildings** (all described in the plan (not available) on the back of the memorializing Indenture edged in blue together with appurtenances & particulars, right of drainage from the land, messuage & hereditaments – through the land of the said Samuel PICKARD; on the east side (by means of a drain already existing & sewers already made or therein after through or under the occupation road bounding & adjoining the land of Samuel PICKARD.
**I am unable to say with any certainty who built Greystones. In my first book “The History of Highfield House” I stated that Greystones was built by Williams Dews. However, with all the extra information I have now acquired, I feel that is not correct. There was a cottage – No 99 on the Inclosure Award – owned by the Duke of Leeds and occupied by Samuel Audsley – on the site of the future Greystones building. This cottage was on a line with cottage No 98, whereas Greystones is lower down the plot. I feel it is unlikely to have been Nathan Mitchell or William Gartside who built it (they owned the land for a while.) The 1861 Census shows Samuel Pickard on Giggal Hill (The future Church/Vicar Lane was included in this area) and William Dews on the Green. The 1871 Census shows Samuel Pickard & family (son Alfred & family as lodgers) on Church Lane (Giggal Hill). William Dews is on the Common (the north side of Church Lane, later Vicar Lane). Samuel Pickard bought Highfield House from John Harrop in 1874. He ‘may’ have been renting Highfield after John Harrop died or could possibly have built Greystones and been living there in 1871? In 1881 Samuel’s son Alfred Hinchliffe Pickard is living in Highfield House. Samuel built Sowood House, which is very similar in design to Greystones, and it states in his Will, signed in 1883 “the dwelling recently erected”. Personally I feel that the above text highlighted in red indicates a larger grander house, (like the future Sowood House), than was previously on this plot and therefore that Greystones was built by Samuel Pickard.
WILLIAM DEWS Died 12th April 1891
Will Proved 15th June 1891
I devise and bequeath all my real and personal estate whatsoever and wheresoever unto my son John DEWS absolutely and I appoint him sole executor of this my Will. I devise all copyhold estates vested in me as a trustee mortgagee unto the said John Dews, his heirs & assigns subject to the trusts & equities affecting the same etc. Witnessed by T. Barker solicitor and Enoch Moss, Clerk
£5,035 12s 2d Gross (£301,582.58 today) £4,981 8s 2d Net
JOHN DEWS of 18 Vicar Lane, South Ossett died 29th July 1921 aged 67 Will proved 26th November 1921
I devise and bequeath all my real and personal estate whatsoever and wheresoever unto my brother Edmund DEWS absolutely and I appoint him sole executor of this my Will. I devise all copyhold estates vested in me as a trustee mortgagee unto the said Edmund DEWS, his heirs & assigns subject to the trusts & equities affecting the same etc.. Signed & witnessed 16th August 1919 by Arthur Ellis & Arnold Wilby.
£6,287 18s 4d
WILL OF JOHN DEWS
Will registered on behalf of Arthur DEWS of Southdale House retired manufacture.16 Aug 1919, Testator John DEWS. This is the last Will & Testament of me John DEWS of South Ossett retired manufacturer. I devise & bequeath all my real & personal estate unto my brother Edmund DEWS absolutely & appoint him sole executor and I devise all copyhold estates vested in me as a trustee or mortgagee unto the said Edmund DEWS, his heirs & assigns, subject to trusts etc.. Registered 21st Dec 1923 (Ref 106 1372 458)
(John died 29th July 1921 and Edmund Died 21st Jan 1923 and the Estate passed to Arthur DEWS)
LAND CHANGES IN 1923
Mary Ann WILSON [Granddaughter of Joseph MITCHELL (1799) daughter of Harriet (1825), niece of Thomas (1827) and Great niece of Nathan (1804)], of Hill Crest, Horbury, Spinster (the Vendor) of the 1st Part and Arthur DEWS of Greystones, Vicar Lane, Ossett, Gent.(The Purchaser) of the other Part. All that piece, parcel of land situate in and abutting the Western side of Sowood Road (or Lane) in Ossett aforesaid and containing 1A 3Rs and 17 Perches (the same more or less) now in the occupation of Thomas William MITCHELL (1866) [son of Thomas (1827), cousin of Mary Ann] which said piece of land is more particularly delineated and described on the plan annexed thereto etc. with the exception of Mines & minerals etc..(Ref: 6 670 249)
(No Plan available)
ARTHUR DEWS of Greystones, Vicar Lane, Ossett died 23rd March 1932, aged 72. Probate, London 24th June 1932 was granted to Lavinia DEWS, widow. Effects £18033.0.7d
LAND CHANGES 1933
1942 Dec 9th
Lavinia DEWS to MARSDEN Bros. Ltd. Lavinia DEWS (the Vendor) , Vicar Lane Ossett, widow of the 1st Part and MARSDEN Bros Ltd.,whose registered Office is at Manor Rd., Ossett (the Company) of the other Part WHEREAS the Vendor being seised in fee simple in possession free from incumbrances of the property hereinafter described has agreed in consideration of the covenants hereinafter contained to sell the same to the Company for a like estate in fee simple free from incumbrances . All that strip or plot of land situate in Vicar Lane etc., containing an area of 68 sq yards bounded on the North and East by property of the Vendor on the West by the Trustees of Christ Church School and on the South by Vicar Lane. etc
Lavinia DEWS died on 16th July 1953 Probate of her Will was granted to her niece Mary Lavinia SANDERSON (Ref: 158 1011 491)
1953 Nov 13th
Memorial of a Conveyance : Mary Lavinia SANDERSON of Greystones, Vicar Lane, Ossett, spinster. Marian COWAN, of Canadian Villas, Station Rd., wife of James Mitchell COWAN & Edmund BRIGGS of 6 Grove St., Ossett, Tailor & Costumier the “Vendors” 1st part AND Joseph SWINDELLS, of White Lodge, Shenstone, Staffs., Chartered Civil Engineer the “Purchaser” the other part.
First Part – All those two plots of land situate in or near Manor Road and Vicar Lane in Ossett containing 1a 1r and 8ps and 1a 1r and 17ps and also that messuage, dwellinghouse with the wash-house stable coach house and outbuildings erected on those two plots & known as “Greystones”. Secondly all that piece of land situate on Sowood Lane containing 1a 3rs 17ps all which said properties are more particularly delineated on the plan, coloured pink. Together also with the same benefit of the covenants upon the part of the grantee contained in a conveyance dated 9th Dec 1942 and made between Lavinia DEWS and MARSDEN Bros. Ltd subject to rights of way, drainage etc., referred to in a conveyance dated 24th Sept 1877 between Samuel PICKARD and William DEWS and as to the property – (usual stuff about mines etc..) (Ref: 1953 185 811 384)
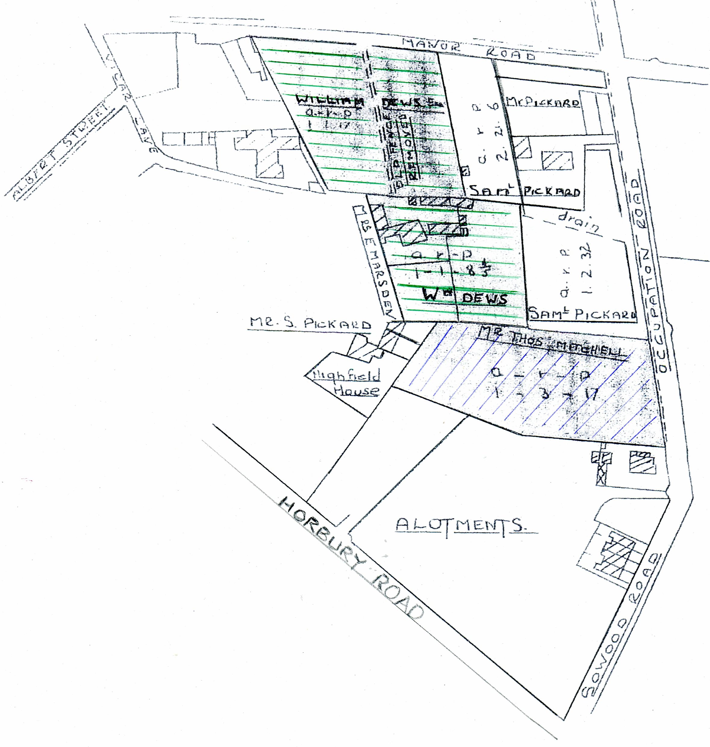
PLAN ATTACHED TO DEED SHOWING LAND AS IT WAS BEFORE 1883
LAND CHANGES 1953
1954 May 25th
Joseph SWINDELLS, Chartered Civil Engineer, Greystones, Vicar Lane, Ossett (The Vendor) 1st Part. AND the Mayor, Aldermen etc. of OSSETT CORPORATION the other Part; All that plot of land in Manor Road .631 acres. Arrangements to be made to construct & maintain an asphalt road 10 ft wide over the drive, remove the gateposts and gates from the end of the drive on Manor Rd., & re-erect them again upon the said drive on the southern boundary of the property; and that they will erect and forever maintain a substantial fence along the whole (Ref: 1954 90 713 334)
1954 Dec 31st
Joseph SWINDELLS, Greystones, Chartered Civil Engineer, Vicar Lane, Ossett (THE Vendor) 1st Part and CONCRETE LTD , Stourton, Leeds (the Purchaser) the other part. Firstly All those 2 plots of land situate in or near Vicar Lane, in Ossett containing respectively 1a 1r 8ps and 2rs 36ps or thereabouts; And all that dwellinghouse with wash-house, stable, Coachhouse & outbuildings thereto erected now known as Greystones. Secondly all that plot of land in Sowood Road (or Lane) containing 1a 3rs 17ps, all delineated on the plan annexed, together with rights of way for purchaser & sucessors.etc..along the drive drawn on the said plan & together with all covenants contained in a conveyance dated 9th Dec 1942 between Lavinia Dews & Marsden Bros., with rights etc….( Ref: 1955 14 623 296)
LAND CHANGES 1954
1957 May 21st
CONCRETE LTD TO PALMERLEY, CONCRETE Ltd, Stourton, (the Vendor) 1st Part; Frank BURDEKIN, Flushdyke, Ossett, (Purchaser) 2nd Part; Roy PALMERLEY, Queen’s Drive Ossett, Olive PALMERLEY (widow) and Mona PALMERLEY (spinster), Queen’s Drive, Ossett (the Sub. Purchasers) 3rd Part. ALL THAT piece, parcel of land situate in and abutting upon the Western side of Sowood Road (or Lane) in Ossett cont. 1a 3r 17ps, (more or less) which said piece of land is delineated on the plan etc. (Ref: 102 726 339)
1957 May 24th
CONCRETE LTD, Stourton 1st part (the Vendors) Frank BURDEKIN, Wkfd Rd., Flushdyke, the other part (The Purchaser). 2 Plots of land 1a 1r 8ps and 1a 36ps (heretofore erroneously stated as 2rs 36ps) and all that dwellinghouse, with coachhouse etc., known as Greystones, re. covenants in a conveyance dated 9th Dec 1942 between Lavinia DEWS and MARSDEN BROS. with rights etc…(Price paid £750) (Dated May 21st.) (Ref: 1957 96 7 3)
LAND CHANGES 1957
IT WOULD APPEAR THAT FRANK BURDEKIN divided the house into 2 dwellings at this time and Jock Davidson was a tenant in No 18a
1957 Aug 12th
Frank BURDEKIN of the 1st Part and Jock DAVIDSON of the Other Part. THIS CONVEYANCE is made 12th Aug 1957 BETWEEN Frank BURDEKIN of Wakefield Rd., Flushdyke, Ossett, Basket Maker (the Vendor) of the 1st Part and Jock DAVIDSON of Number 18A Greystones, Vicar Lane, Ossett, Basket Maker(the Purchaser) (Ref: 150 918 382)
PLAN ATTACHED TO Ref: 1957 150 918 382
1957 Nov 20th
Frank BURDEKIN of the 1st Part; Mayor, Aldermen, Burgesses of Ossett the other Part. All that Plot of land 1.143 Acres with rights etc., unto the Vendors and his successors, owners or occupiers for the vendors adjoining property Greystones. Purchaser to remove gate posts from north boundary and refitting on south boundary, repairing & maintaining walls etc. Dated Oct 14th). (Ref: 1957 215 1095 484)
1959 May 29th
Frank BURDEKIN of the 1st Part, (The Vendor); Douglas BARRAS, (Fireman) and Elsie BARRAS (his wife), 9 Back Ings Cottages, Denby Dale Rd., Wakefield the other Part (The Purchaser). Land & Dwellinghouse No 18b Greystones. Price £1,400. May 25th (Ref: 1959 107 49 18)
LAND CHANGES 1959
1961 Nov 10th
Douglas BARRAS & Elsie BARRAS 1st Part; Frank BURDEKIN 2nd Part; John Michael JUDGE & Gwendoline Emma JUDGE 3rd Part. This Conveyance is made the first day of November 1961 Between Douglas BARRAS (Member of her Majesties Forces) and Elsie BARRAS (his wife) both of 18b Greystones, Vicar Lane, Ossett in the Co. of York (the Vendors) of the 1st part, Frank BURDEKIN of Flushdyke, Ossett, Basket Maker (the Mortgagee) 2nd Part and John Michael JUDGE (Motor Body Builder) and Gwendoline Emma JUDGE (his wife) both of 18 Duke of York Avenue, Sandal, Wakefield (the Purchasers) 3rd Part. WHEREAS: – 1. By a Conveyance dated 25th May 1959 made between the Mortgagee 1st Part and the Vendors of the other part the property hereinafter described……… all that Plot of land situate in or near to Vicar Lane, Ossett AND ALSO ALL THAT dwellinghouse, with the Garage and Workshop thereto erected thereon or on some part thereof known as Number 18b Greystones, Vicar Lane, Ossett. ALL WHICH SAID Property is for the purpose of identification (delineated on the plan dated 25th May 1959. Together with rights etc.) (Ref: 1961 252 963 447)
LAND CHANGES 1961
Some time between 1970 and 1980 No 18a was conveyed to Mrs Margaret Evelyn HINCHLIFFE. (I have been unable to find the information for this as records in the Registry of Deeds are unavailable after 1970. Information is available from the Land Registry for land ownership after 2000)
Margaret E HINCHLIFFE died intestate in 1980 and her estate passed to her two sons
Harry and Frank
1981 Jan 14th
Land Rights between Harry HINCHLIFFE and Frank HINCHLIFFE
Frank decided he wanted the house so Harry got the warehouse and paddock which belonged to 18a. Harry then sold the warehouse and paddock.
1975
PLANNING APPLICATION 18b Vicar Lane
Conversion to 2 Flats by John Judge
It is believed that conversion took place to enable Monica HOPKINS, younger sister of Gwen to live there.
Gwendoline Emma JUDGE died 1991 and John Michael JUDGE died 29th February 1992
After the death of John JUDGE the property (18b and 18c) eventually passed to the daughters of his younger brother Alphonsus JUDGE – Kathleen Margaret CANNINGS and Pauline Marie WILLIAMS. (Apparently Monica was the last person to live in 18b before it was sold to David & Karen Nash).
Monica HOPKINS died In April 1996
On 18th December 1998 18b Vicar Lane was conveyed to David John and Karen Lesley NASH
And consequently, on 18th December 2007, 18a Vicar Lane was conveyed to them by Mrs Margaret HINCHLIFFE (widow of Frank)
November 2015
The New Owners of the 2 Properties 18a and 18b Vicar Lane
(formerly known as ‘Greystones‘) are
Mr Charles and Mrs Claire BOSWELL
























