The 1910 Valuation Award for the whole of Ossett and accompanying maps with the owners names on are available to view here: LAND AWARDS
1910 Valuation Map 247/8
1910 Ossett Map 248 – 5 with parts of the map incomplete
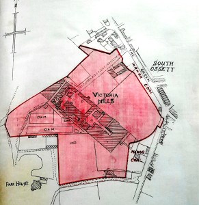
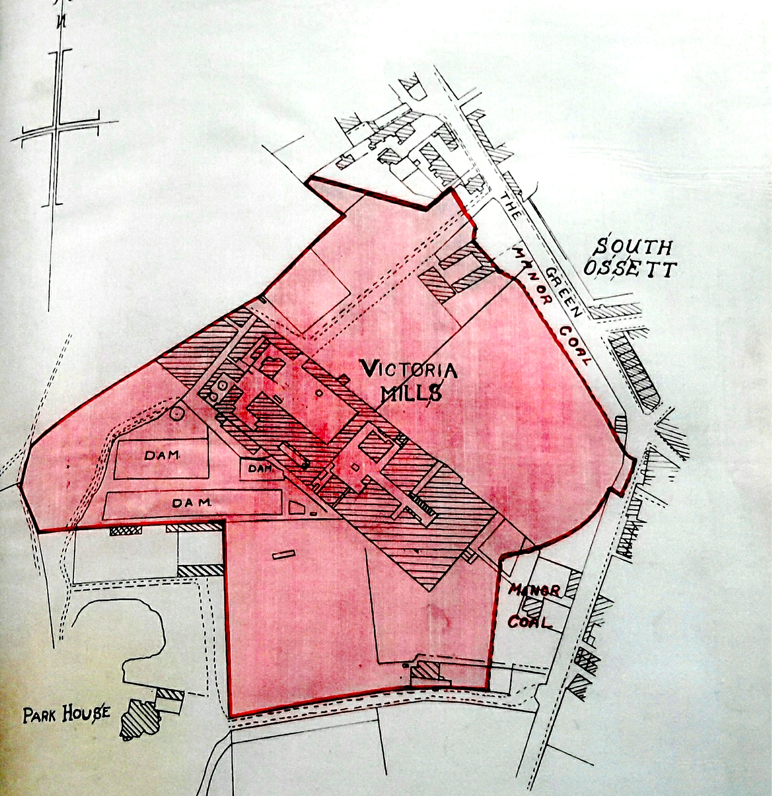
Whilst working on this project I have discovered an anomaly on the 1910 Valuation Map. The Award (shown below) lists the numbers 1163; 1164 and 1165 as Park House but the only number on the Map is 1163. 1164 and 5 are owned by Ossett Corporation as a House and a Secondary School, which we now know as Ossett Grammar School. (Ossett Academy)

1911 Census for Thomas GRACE whose name is on the Park House Plot

OSSETT GRAMMAR SCHOOL, FORMERLY PARK HOUSE
MATERIAL CONNECTED TO THE OSSETT GRAMMAR SCHOOL
Obtained from West Yorks Archive Service at the
West Yorks History Centre, in Wakefield
(Ref: WMT/OS)
1910
VARIOUS EXCERPTS FROM GOVERNORS MEETINGS




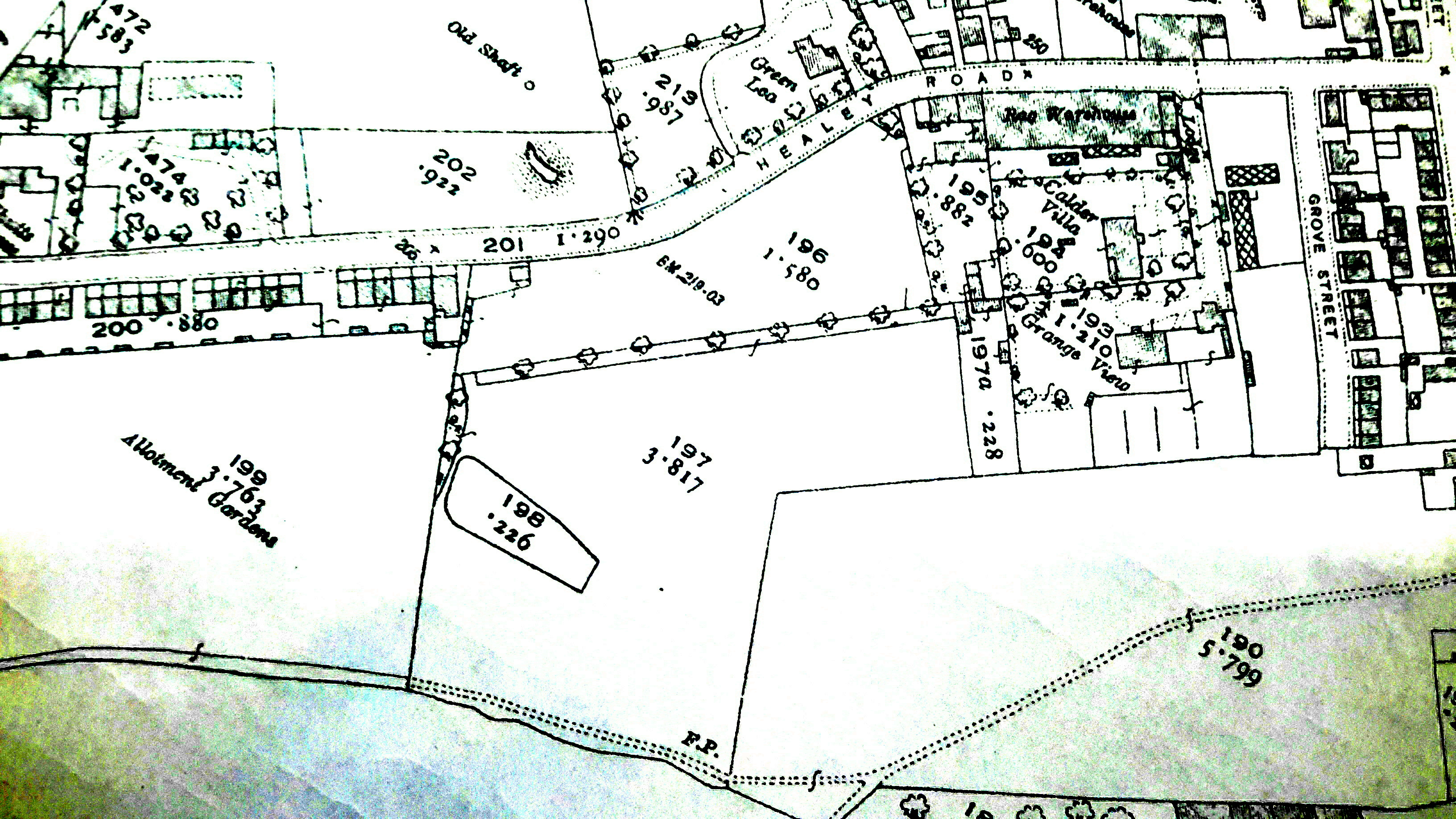
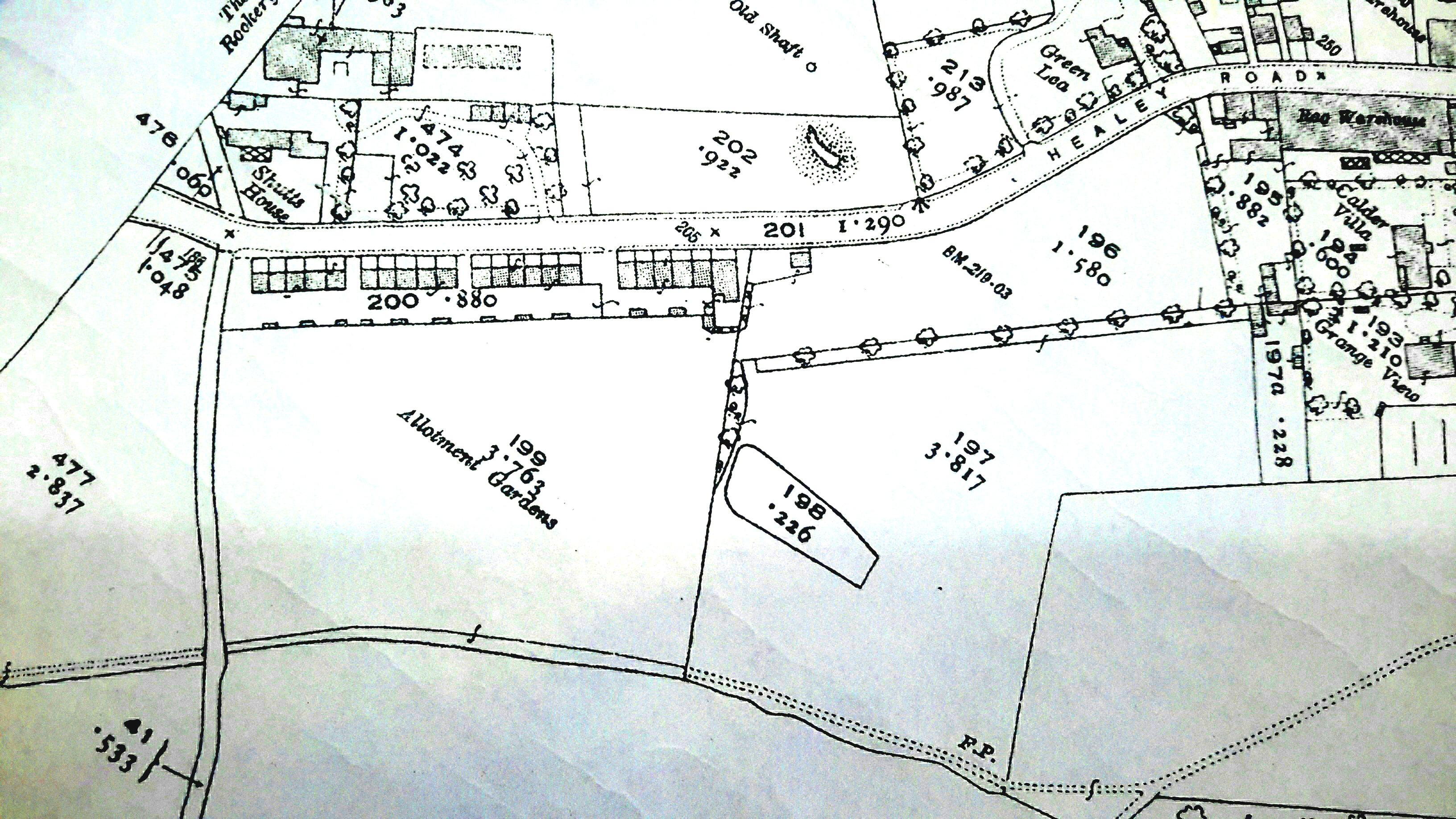
I have had to become an amateur ‘cartographer’ in order to produce a workable map of the ‘Healey to Denton Lane area’ for post 1910. I have adapted the following piece from the 1905 Ordnance Survey Map for Horbury and added it to the bottom of 248-5.
1910 Map HEALEY RD. TO DENTON LANE (Sowood Bend)
created by Joan P Smith

TOP OF HEALEY ROAD

STORRS HILL CORNER TO DENTON LANE
1910
WILL OF CHARLES WHEATLEY made 20th Nov 1901. 1st codicil 1903 mentions John HOOPER & Albert Harry BATLEY? 2nd codicil 1906. mentions Eleanor Wheatley STEELE spinster and Camilla STEELE, spinster. Date of Death 20th April 1910. Testator Eleanor STEELE wife of Adam Rivers STEELE of Loddington Hall, Northants. All the real estate in the West Riding devised by the Will of Charles WHEATLEY, late of Sands House, Hopton, Mirfield to the use of Eleanor STEELE, the assignee? for life with special power of appointment in favour of her children, mentions Harmer STEELE and John HARPER (Ref: 1910 21 548 223)
16/7/1910 – Eli ?TOWNEND Will – no information except Walter TOWNEND signed. (Ref: 1910 44 1032 396)
1911
Adam Rivers STEELE, of Kettering 1st Pt. Joshua Hirst WHEATLEY, Esq. Coventry & Joseph WHEATLEY Esq, Mirfield; Rev. John Thornton STEELE, Saffron Walden Clerk, Rev. John Shepley STANCLIFFE of Northumberland 2nd Pt: & Harmer STEELE of 21 College Hill, Solicitor 3rd Pt. All that land of Charles WHEATLEY dec’d, which was conveyed to Eleanor STEELE dec’d. ( Ref: 1911 8 409 170)
Will of Sophia BRIGGS 20th Aug 1910.
Houses on George St., 2 occupied by SMITH & CAVE and 5 occupied by WILBY, PARKER, DEWS, ELY & Percival WILBY.
1912
Joseph BROOK of Manor Rd., Ossett the Vendor and Ezra PICKLES of George St., Ossett the Purchaser (Ref: 1912 11 225 87)
EXCERPTS FROM DEED

Joseph BROOK of Manor Rd., Ossett the Vendor and William DEPLEDGE 30 South Street, Ossett the Purchaser (Complicated Deeds) (Ref: 1912 11 229 88 )
EXCERPTS FROM DEED


1913
Will of Henry Castile SCOTT Died 3 May 1912 (Ref: 1913 1 815 292). Part of the Will concerning Ossett Common End.

George Henry SCOTT, Sheffield, Samuel Castile SCOTT, Georgiana SCOTT and Anna Louisa SCOTT all of Mona Cottage Sth Ossett. Re: Will dated 15th Feb 1905 of Henry Castile SCOTT, late of Mona Cottage who died 3rd May 1912, proved in Registry 10th July 1912 at the request of Samuel Castile SCOTT (Devisee of freehold property).(Ref: 1913 21 526 215)

1913
WILL of Robert SUTTON Died 24th Nov 1912 No information (Ref: 1913 38 326 130)

LEEDS & WAKEFIELD BREWERIES 1st Pt. Enos BROOK, Green Grocer the Other Pt. Land situated at junction of Horbury Rd., & Storrs Hill Rd. measuring10ps. Bounded W by Storrs Hill Rd., S by property of Arthur ELLIS, David ELLIS & Sam Castile SCOTT. E by Messrs HARRAP. N by Horbury Rd., Also all that messuage or Butchers Shop and dwelling, formerly 2 messuages, & lately known** as the Junction Inn and also 3 cottages adjoining in the occupation of John Hirst WALKER, Harriet AMBLER & Blythe WALKER, with outbuildings etc., all formerly described as ” land at Ossett Common” 10ps, bounded N by highway from Ossett to Horbury; E by allotment of the Duke of LEEDS, W by Horbury Bridge Rd., & S by land of John WILBY (Carrier), (awarded on the 1807-13 Inclosure Act) and respectively of those 5 dwellings formerly occupied by William GODLEY & others (Ref: 1913 41 1225 447)
**The Junction Inn was formerly known as “The Quiet Woman”

Enos BROOK, Green Grocer and Harriet Ann, his wife 1st Pt. John William WALKER of Dewsbury, Wholesale Fruit and Potato Merchant the Other Pt (SAME detail as previous Deed) (Ref: 1913 41 1227 448)
1914
Eleanor Wheatley STEELE Sp. Camilla STEELE Sp. Mary STEELE Sp all of Loddington Hall, Kettering 1st Pt Joshua Hirst WHEATLEY, Coventry Joseph WHEATLEY, Mirfield, Rev John T STEELE & Rev John Shepley STEELE 2nd Pt Lancs & Yorks Railway Co 3rd Pt Plot of land part of 2 closes known as Dickenson Royd at Healey N by other pt of close S by the Company & E by premises secondly described. Secondly land known as Mid Master Close.- N by other part S by the Company E by Godfrey ILLINGWORTH. W by premises heretofore described. ( Ref: 1914 3 398 135)

1915
Walter Briggs NETTLETON 1st Pt the Vendor; Arthur ELLIS & David ELLIS 2nd Pt. Samuel Castile SCOTT 3rd Pt. Geo. Henry SCOTT 4th Pt Georgiana SCOTT 5th Pt & Anna Louisa SCOTT 6th Pt. The Purchasers. £150 paid.to Vendor. House No 14 Briggs Buildings, at Ossett Common End. Messuage, Dwelling and Kitchen & vacant land, formerly occupied by David BRIGGS, then Ezra NETTLETON but now Leonard SMITH (Ref: 1915 14 242 96)
Memo of Discharge. William WILCOCK of Storrs Hill Ossett, Rag & Mungo Merchant 13/9/1915. UNITED COUNTIES BANK & William WILCOCK. Transfer. Wkfd & BARNSLEY UNION BANK in Liquidation 1st Pt, Walter Herbert WRIGHT & Herbert Johnstone ROPER 2nd Pt William WILCOCK 3rd Pt and the BIRMINGHAM & DISTRICT COUNTIES BANKING CO LTD. 4th Pt. Memorial Registered at Wakefield (6th May 1907 Vol 17 585 252) (Ref:1915 31 196 74)
1916
YORKS PENNY BANK 1st Pt, James Wm CLOSE and John CARNES 2nd Pt Anne DIXON and John Edward DIXON 3rd Pt LONG DEED re. Liquidation of Bank (Ref: 1916 12 502 199)
Anne DIXON of Headingley, widow and John Edward DIXON of Headingley Cloth Manufacturer (The Vendors) 1st Pt, James BURROWS & Ernest BURROWS – Co- partnership as Rag Merchants, under the Firm name of Henry BURROWS at Ings Mill Batley the Other Pt. 2 Closes of land in Ossett- .Near Laithe Croft and Far Laithe Croft (including site of mill, warehouse, buildings etc) containing 10a 3r & 39p. Bounded on NE by Ossett Green Rd., SE by Storrs hill Rd., SW by land & hereditaments purchased by John, Eli & Phillip ELLIS, of the Trustees of John CROWDER . (Long Deed mentioning Mills, Weaving Sheds etc., 2 cottages at NE corner .and Mansion House, outbuildings etc. (Ref: 1916 12 504 200)

1917
Walter ROBERTSHAW to TERRY & GREAVES & Co. – Lease re. coal seams (Ref: 1917 9 241 91)





Arthur CRAVEN 1st Pt, Joseph BROOK 2nd Pt John Thomas MARSDEN and Benjamin MARSDEN 3rd Pt (Mortgage). Difficult to understand so copy of one page of text included: (Ref: 1917 12 77 28)


Arthur CRAVEN 1st Pt, Ralph TALBOT FOX .The Other Pt. (Connected to previous deed.) (Ref: 1917 12 82 27)
James & Ernest BURROWS of Batley Rag Merchants the ‘Lessors’ 1st Pt and Terry GREAVES & CO- Old Roundwood Colliery (the ‘Lessees’) the Other Pt. All that Mine Bed “Silkstone Bed” 16 acres, at South Ossett. (Ref: 1917 13 1335 482)



1919
John Willie MITCHELL Kings Yard Healey 1st Pt William TAYLOR the Other Pt £330. Land at Healey called Kings Yard 287 sq yds. N & W by property of Henry BENTLEY & Co S partly by property of …..”blank” & partly by Thomas GELDER & E part by BENTLEY & Co and part by “blank” all those stone built 4 cottages erected on said plots occupied by J.W MITCHELL (Vendor). (Ref: 1919 26 165 60)
Fredk Wm BRIGGS formerly of Glasgow but now Southport, Gent 1st Pt. Walter BRIGGS of Sidney Australia Gen, 2nd Pt Arthur ELLIS of Prospect Villas, Ossett Cloth Manufacturer, David ELLIS of Storrs Hill House, Ossett, cloth manufacturer; Saml Castile SCOTT of Mona Cottage, Ossett, cloth manufacturer the Other Pt. All that parcel of land at Storrs Hill Rd.,Ossett 4583 sq yds, (This refers to a House on Horbury Rd.,(Newfield?) and Storrs Hill Mill) NW by Storrs Hill Rd.,NE & SE by other property belonging to the purchasers SW partly by property of Rev. Father HARTELL & partly by WALKER & Sons whose land formed part of an allotment containing 1a 5p awarded to James BRIGGS by Comm. of Inclosure Award in 1813 and also 12 cottages & dwelling houses called ‘Old Row’ with warehouse, stables, outbldgs thereto & being on said piece of land hereby conveyed & now in several occupations of Ellen CALLAGHAN, Sarah SMITH, Thomas MURRAY, James HALLAS & others. subject to all rights etc..( Ref: 1919 74 926 327)

Agnes BRIGGS 1st Pt; Julia LONGBOTTOM 2nd Pt, James Edward BRIGGS 3rd Pt, Arthur ELLIS, David ELLIS, Saml CASTILE SCOTT 4th Pt. All that piece of land facing Storrs Hill Rd., W by Storrs Hill Rd & on all other sides by other property of the purchasers and also all those 10 Messuages with outbldgs etc., (2 now occupied as a House & Shop & known as 9,11,13,15,17,21,23,25 & 28 Briggs Row, occupied by Messrs White, Armitage, Smith, Murray, Ryan, Pickard, McCul?? Dolan & Green. With all rights etc. ( Ref: 1919 92 1014 375)

1920


Ref: WYAS WMT/OS
John HUTCHINSON of Horbury the Vendor; George HUTCHINSON of Hawthorn Cottage, builder the Other Pt .Land at Ossett Common End, part of Bull Close. E by Horbury Bridle Rd., NW by centre of street 10 yds wide W or SW by other parts of Bull Close. Re Indenture 12th Oct 1860 between Philip CRAWSHAW 1st Pt and Elizabeth BOOCOCK the Other Pt. (Ref: 1920 15 853 294)
Sarah BROOK widow 61 The Green Ossett and Enos BROOK No 1 Storrs Hill Rd., Green Grocer (the Vendors). 1st Pt and Charles FIRTH, of Harrogate, Manufacturer (the Purchaser), the Other Pt. Land on South Street; W or SW by public highway, Ossett Green or South Street, aforesaid and on all other sides by property of the Purchaser and cottage thereon, formerly in occupation of Eliza FOTHERGILL, then ILLINGWORTH Will??? but now John Eli MERCER. SEE PLAN (Ref: 1920 69 57 28)

George TOWNEND, Ash Villa, Ossett, Harvey TOWNEND, Cornishead Priory & David Hanson ARCHER, Farrier the 1st Pt. Walter ELLIS, Mungo Manufacturer the Other Pt. Eli TOWNEND, late of Ossett, retired Mungo Manufacturer, died on 16th July 1910. Will dated 6th Jan 1908.
Of & Concerning: All that piece of land at Healey Rd., now used as a garden, with range of glass houses & other buildings erected thereon, containing by ad measurement 2208 sq yds. SEE PLAN (Ref: 1920 80 164 55)

George TOWNEND, Harvey TOWNEND & David Hanson ARCHER 1st Pt. Harvey TOWNEND the 2nd Pt and Harry BUTTERFIELD, of Westfield, Ossett, Cloth Manufacturer 3rd Pt. (Ref: 1920 85 835 316)



George TOWNEND, Harvey TOWNEND & David Hanson ARCHER 1st Pt. Harvey TOWNEND the 2nd Pt and Edward SMITH & Co. Ltd the Other Pt. (Ref: 1920 90 497 183)


Arthur ELLIS, David ELLIS of Storrs Hill House & Sam Castile SCOTT of Mona Cottage the Vendors. Walter BERRY & Walter Sydney BERRY of Huddersfield the Trustees 2nd Pt Walter BERRY & Sons 3rd Pt. (Ref: 1920 117 194 77) MANY PAGES. ) see 1st Part of Healey Lane to Denton Lane). (Ref: 1909 40 463 177)
1921
Arthur MITCHELL of Woodhouse, Emley, Farmer 1st Pt. The Mayor & Burgees etc. of Ossett “The Corporation” The Other Pt. Close of land at Storrs hill (part of the Commonside Close or Horse Close containing 2a 2r formerly 3a 2r but part of which (including a New Street 12 yds wide) has been sold to Robert STUBBS. Bounded N part by property of Joseph BROOKE, part by Messrs HEAPS & WILBY & part by property now or late of WKFD & BARNSLEY UNON BANK & part by property of Reps of the late William ALLOTT. E by other part of the said larger close sold by Geo. MITCHELL to Robert STUBBS S by part of the property of Mrs BATTYE & part formerly of the late Geo MITCHELL W by close secondly hereinafter described & now in the occupation of Messrs MARSDEN Bros.& of and Secondly all that close of land situate at Ossett aforesaid adjoining the last described close on the W containing 3a 2r 16p Bounded N part by Messrs Geo. BRIGGS & Sons & part by property of the Reps. of William BRIGGS, part by Reps of William, Edmund and Mark BRIGGS & part by Joseph BROOKE, E by property formerly of late Geo. MITCHELL, part by William WILCOCK & W by property of the trustees of the late H J BARBER & part by St IGNATIUS Chapel and School. In the occupation of Messrs MARSDEN BROS..which said closes contain 6a 14p.(SEE 1903 28 461 202) (Ref: 1921 44 372 136)
Martha ROBERTSHAW widow; Arthur William ROBERTSHAW, Butcher and Melancthon Jackson ROBERTSHAW Butcher of Falcon House, Storrs Hill Rd., Ossett 1st Pt. Martha Robertshaw 2nd Part. Arthur William, Melancthon and Mary Eliza ROBERTSHAW, spinster 3rd Pt. And various members of the Roman Catholic Clergy the 4th Pt. Plot of land 1123 sq yds of land,. (Walter ROBERTSHAW Dec’d 8th Jan 1921: Probate Ref: 1921 19 985 371) (Ref: 1922 1 1061 406)

George HARROP of Horbury, Club Steward, the 1st pt. George HARROP, Hannah WILBY, wife of George WILBY of Horbury and Wilfred HARROP of Darwen in Lancs. Schoolmaster 2nd Pt. Emily Ann SMITH of No 6 Old Mill yd Healey, widow the 3rd Pt. Plot of land near to Horbury Rd.at Ossett Common End, containing, including road 10 yds wide, the eastern part of a moiety of roadway 12 ft wide on northern end. 655 sq yds. N by the centre of said roadway & property late of J and G HUTCHINSON. S by property now or late of David PICKARD & others, W by property now or late of Thomas HARROP and Philip CRAWSHAW & E by property N or NE of Messrs BRIGGS BROS.and 2 messuages/dwellinghouses known as nos 4 and 6 South Terrace, with outbuildings and Rights etc. (Ref: 1922 48 389 132)
1923
Godfrey ILLINGWORTH, of Healey Rd.,Ossett farmer & fellmonger The Vendor. Mayor & Aldermen The Corporation of Ossett the Other pt. Land Sth West of Storrs Hill Rd 910 sq yds, the NE side of a close of land containing 6a 2r 30p known as the Long Close or Storrs Hill Close ( Ref: 1923 33 695 238)

Duncan Farquharson BELL of Flockton the 1st Pt. George HUTCHINSON, Horbury Rd., Ossett, Contractor, the Other Pt. Plot of land with frontage on George St., off South Street . NW by property formerly of Arthur CRAVEN, then Ralph Talbot FOX, then Frederick BARRATT & now Geo. Wm GLOVER. SE by trustees of Joseph BROOK dec’d SW by centre of George St., & up towards NW by property formerly of J N BROOK 614 sq yds and also 4 messuage/dwellings with outbldgs on said plot numbered 31; 33; 35 & 37 South Street (Ref: 1923 43 888 333)
WILL of Sarah HARROP of Laurel Cottage, Horbury. Trustees son George HARROP and John Thomas MARSDEN No date of death! (Ref: 1923 63 1023 348)
1924
Arthur ELLIS, David ELLIS , William GILDERDALE . Three Executors of the WILL of William ELLIS, late of Broom Cottage, Storrs Hill, Gent, who died on Feb 12th 1923. Cottage and all Assets to Emma NYE (Ref: 1924 2 938 281)
James BURROWS of Ing Mill Batley and Ernest BURROWS of Providence Mill Dewsbury Rag Merchants “The Vendors” 1st Pt & the said James BURROWS 2nd Pt and Fred BURROWS of Horbury Rag Merchant the 3rd Pt. (SEE DEED 1916 12 504 200) (Ref: 1924 52 99 36)

WILL of Joshua ELLIS (who died on 5th April 1924) showing details of properties mentioned in Deed 1924 61 37 12

John William ELLIS and Gertrude Emma Ellis 1st part and Charles ELLIS; Gertrude Emma ELLIS; John William ELLIS; Alfred Ernest ELLIS; John Henry ELLIS and Ethel Mary ELLIS. The Other Pt (ON SEPARATE DEEDS) Re. The Will of the late Joshua ELLIS of Shutts House, Ossett, who died on 5th April 1924. The following image shows the properties bequeathed to each of these people. (Ref: 1924 91 886 316 onwards )

I have included the following image of SHUTTS HOUSE ESTATE, although it is on the other side of Healey Rd., for the readers’ interest.

LAND CHANGES – 1924

1925
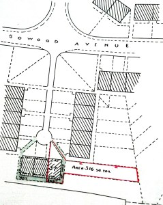
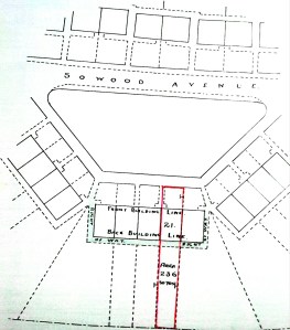
SALE OF HOUSES ON SOWOOD AVENUE
The basic text was the same for each of these transactions so I have included here the first & back pages.

First Page (adapted)


MAYOR & CORPORATION etc. of OSSETT 1st Pt Mary Elizabeth DEALTRY, wife of Joe DEALTRY, 13 Broadway Goole, Butcher the Other Pt.(Ref: 1925 33 650 211)

MAYOR & CORPORATION etc. of OSSETT 1st Pt Pt Edward BOTTOMLEY Tram Driver & Eliza Ann BOTTOMLEY of Sowood Avenue, the Other Pt (Ref: 1925 38 362 114) Plot 3 Sowood Avenue.

MAYOR & CORPORATION etc. of OSSETT 1st Pt. Annie HOPKINSON wife of Walter HOPKINSON, of 166 Kirkgate Wakefield the Other Pt. Plot 5 Sowood Avenue (Ref: 1925 38 369 116)

MAYOR & CORPORATION etc. of OSSETT 1st Pt Ben DUTTON of Ash Villa, Westfield Rd., Horbury, Miner the Other Pt. PLOT 6 (Ref: 1925 38 376 118)

MAYOR & CORPORATION etc. of OSSETT 1st Pt Nora WOMACK, wife of Bertie, the Other Pt. Plot 2 Sowood Avenue (Ref: 1925 38 1311 424)

MAYOR & CORPORATION etc. 1st Pt Elizabeth INESON of 2 Carr Crofts, Armley the Other Pt. Plot 14 on Sowood Ave., (Ref: 1925 61 139 47)

MAYOR & CORPORATION etc. 1st Pt Ann HAMER of Kiln Croft, Stainland, Spinster the Other Pt. Plot 13 Sowood Ave., (Ref: 1925 62 118 45)
MAYOR & CORPORATION etc. 1st Pt. William MYERS of Gt Horton the Other Pt. Plot 15 Sowood Avenue (Ref: 1925 76 187 69)

MAYOR & CORPORATION etc..1st Pt Fred UNDERWOOD of Earlsheaton the Other Pt. Plot 16 Sowood Ave., (Ref: 1925 89 932 334)

Susannah STUBBS of North View, Horbury Rd., Ossett, widow the Vendor and Harry SPURR, 26 South Terrace, Ossett, Joiner & Builder the Purchaser Plot of land at Sowood Lane near Horbury Rd.,, part of a larger plot described on Indenture dated 12th October 1897 between George MITCHELL 1st Pt and Robert STUBBS the other Pt.(including southern moiety of a new street 36ft wide, called Sowood Avenue. 580 sq yds Bounded N by northern moiety E by Sowood Lane & S by property of Mrs BATTYE and W by the other part of the said larger plot belonging to the Vendor (Ref: 1925 101 1045 338)

MAYOR & CORPORATION etc. 1st Pt. .Ernest Samuel MILLS of The Manse, Hightown Castleford, Minister of Religion the Other Pt Plot 24 on Sowood Ave., ( Ref: 1925 104 1175 399)

MAYOR & CORPORATION etc. 1st Pt. Henry Alwyn CLOSE of Barstow Sq, Wakefield the Other Pt. Plot 31 on Sowood Ave., (Ref: 1925 125 663 216)

1926
MAYOR & CORPORATION etc. 1st Pt. Bernard Albert WOOD of Sandal, Wakefield the Other Pt Plot 45 Sowood Ave., (Ref: 1926 5 1064 358)

MAYOR & CORPORATION etc. 1st Pt. Matthew LILL of Storrs Hill Ossett. the Other Pt Plot 47 Sowood Ave., (Ref: 1926 16 932 299)

MAYOR & CORPORATION etc 1st Pt Jim and Francis MIDGLEY of Gills buildings, Alverthorpe Rd., Wakefield the Other Pt Plot 37 Sowood Ave., (Ref: 1926 24 179 65)

MAYOR & CORPORATION etc 1st Pt. Martin Gilbert SWAINE of 9 Wilson Avenue, Ossett, the Other Pt. Plot 39 Sowood Ave., (Ref: 1926 26 47 14)

Walter HARROP 23 Jenkin Rd., Horbury 1st Pt Thomas BALMFORTH 41 Manor Rd., the other pt. 2 cottages, Nos 3 & 5 Horbury Rd., Ossett (Ref: 1926 29 950 333)
MAYOR & CORPORATION etc 1st Pt Alfred Bradshaw Boston JOPLING of Arundel St. Wakefield the Other Pt Plot 29 Sowood Ave., (Ref: 1926 38 807 266)

MAYOR & CORPORATION etc 1st Pt John Lucas LOWERY of 21a Sowood Ave., Ossett the Other Pt Plot 21 Sowood Ave., (Ref: 1926 48 502 184)

MAYOR & CORPORATION etc 1st Pt Arthur KILLINGBECK of 22 Mark Lane, Wakefield the Other Pt. Plot 38 Sowood Ave., (Ref: 1926 52 145 56)

MAYOR & CORPORATION etc 1st Pt Royce WHITELEY 17 Wood End ……….Hyde, Cheshire the Other Pt. Plot 46 on Sowood Ave., (Ref: 1926 67 803 262)

MAYOR & CORPORATION etc 1st Pt Harold MILLAR 5 Hambleton St., Jacob’s Well Lane, Wakefield the Other Pt Plot 44 on Sowood Avenue (Ref: 1926 70 864 300)

Will of John Wm CROWTHER of 53 Horbury Rd., Ossett Retired Rag Merchant dated 5/2/1913 Died 28/3/1913. All Testators dwellinghouse at Horbury Rd., Ossett with cottage, land, outbldgs etc., belonging AND all those Testators cottages and shop, land etc., at Flushdyke, Ossett, And all other his Real Estate.(if any). Witnessed by Ethel CROWTHER of same address, spinster and only executor of Will.(Ref: 1926 83 645 198)
MAYOR & CORPORATION etc 1st Pt Francis & Hannah E BEEVERS of Johnstone St., Wakefield the Other Pt Plot 27 on Sowood Avenue (Ref:1926 91 692 236)

MAYOR & CORPORATION etc 1st Pt Walter MILNER of 19 Clarendon St., Wakefield, Retired Postal worker the Other Pt Plot 26 on Sowood Avenue (Ref: 1926 92 830 266)

MAYOR & CORPORATION etc 1st Pt John Blackburn JOHNSON 9 Holly Street, Wakefield the Other Pt Plot 35 on Sowood Avenue (Ref: 1926 106 1026 338)

MAYOR & CORPORATION etc 1st Pt Elizabeth Ann PICKARD 28 Storrs Hill Rd., the Other Pt Plot 42 on Sowood Avenue (Ref: 1926 150 750 248)

Godfrey ILLINGWORTH farmer the ‘Lessor’ 1st Pt INGHAMS THORNHILL COLLIERY LTD. ‘The Colliery Co.’ the Other Pt insert sample (Ref: 1926 152 266 92)

MAYOR & CORPORATION etc 1st Pt EXTRACT WOOL & MERINO CO LTD. The Other Pt. Triangular plot at Healey 1062 sq yds Bounded SE by other property of THE CORPORATION & NE by property of LMS Railway NW by other property of the Company. (Ref: 1926 155 1196 390)
LAND CHANGES 1911 – 1924

LAND CHANGES 1911 – 1926
STORRS HILL CORNER TO DENTON LANE

1927
MAYOR & CORPORATION etc 1st Pt Tom PICKUP of 30 Sowood Ave., Ossett. Re. Plot 30 Sowood Avenue (Ref: 1927 9 780 242)

Thomas NEALE of Back Hatfield St Wakefield 1st Pt. Alice Mary NOLLAND, widow, Sth Lodge Kirk Smeaton, Nr Pontefract the Other Pt. Plot of land at Healey. N, partly by …………………& partly by property of Messrs. BENTLEY & Co. S by HEALEY GOODS YD., E by OSSETT CORPORATION & W part by centre of a back street 12′ wide, separating the property from Mr THOMAS GELDER & part by ………….containing 1270 sq yds. AND all those 8 dwellings with outbldgs etc. erected on the said land & in the occupation of Thomas Walter CHARLES; Walter DUDLEY; Albert PRIESTLEY, Lionel TINKER, Frank FOZZARD, Frances MURRAY, Alice WICKS and Asher WADE- Nos 11, 13, 15, 17, 19, 21, 23 and 25 KINGS BUI,DINGS, Healey. Together with all rights etc. (Ref: 1927 39 314 104)
1928
Ernest Samuel MILLS of York, of ‘Holm Dene’ 46 Sowood Avenue, Minister of Religion (Retired) 1st Pt. And George Smith ARCHER of 59 Sowood Avenue, Accountant the Other Pt. Plot of land 558 sq yds on Sowood Avenue numbered 46, known as ‘Holm Dene’. (Ref: 1928 33 901 309) (see 1925 104 1175 399),

Geo, William CLEGG of 47 Horbury Rd., Ossett. Letters of administration dated 20th Sept 1928. Date of Death 20th August 1928. All intestate’s estate. Widow Sarah Jane CLEGG..(Ref: 1928 121 259 89)
1929
Arthur CRAVEN, Rag Merchant, 24 South Street, Ossett. WILL Dec’d 19th July 1929. All Testators Estate. (this is all it said) Harriet Ann CRAVEN signed at the bottom of the page. (Ref: 1929 143 844 299)
1930
Joshua Fox TAYLOR, Retired Organist, Laurel Bank, Ossett. WILL dated Aug 13th 1926 Testator Dec’d March 6th 1929. All his Estate. Executor: Jos. L? TAYLOR, Thorncliffe, Runtlings Lane, Ossett (Ref: 1930 1 1176 393)
1931
Godfrey ILLINGWORTH Date of WILL 27/12/1922; Codicil 13/7/1931; Death 28/8/1931. Farm at Ossett 100 acres with farmhouse & Outbuildings, now in Testators own occupation. Codicil describes the land as 130 acres. All other Real Estate. Signed by Elizabeth ILLINGWORTH, The Rookery, Healey Rd., one of the Executors (Ref: 1931 112 312 102)
1931
Martha Robertshaw widow 1st Pt; (The Vendor) Martha Robertshaw, Arthur William, Butcher and Melancthon Jackson ROBERTSHAW Butcher of Falcon House, Storrs hill Rd., Ossett (The Trustees of Walter ROBERTSHAW) 2nd Part (WILL dated 12/5/1919. ((died 8/1/1921)) . Charles Henry AKEHURST & Ethel AKEHURST his wife 3rd Pt. Plot of land 450 sq yds East side of Storrs Hill Rd., Bounded on N & E by other land of the Vendors and by property of Melancthon Jackson ROBERTSHAW, with frontage of 15 yds on Storrs Hill Rd. (Ref: 1931 139 323 137)
1932
Martha ROBERTSHAW, widow 1st Pt; Martha ROBERTSHAW, Arthur William ROBERTSHAW, Butcher and Melancthon Jackson ROBERTSHAW Butcher of Falcon House, Storrs Hill Rd., Ossett (The Trustees of Walter ROBERTSHAW) 2nd Part Rt Rev’d Joseph Robert COWGILL and William HAWKSWELL of Bishop’s House Leeds, Rev Ignatius John SAXTON of Otley, Rev William Joseph BICKERDYKE of Harrogate and Rev Kevin HENEGAN clerk in Holy Orders Cathedral House Leeds.3rd Pt. Plot of land 2095 sq yds Bounded North in part by other property of Purchaser and W in part by Storrs Hill Rd. SEE PLAN ( Ref: 1932 89 168 55)

1933 MAPS FOR THE AREA





1933
HUTCHINSON Conveyance Geo. Wm GLOVER 1st Pt Vendor : George HUTCHINSON, Horbury Rd., Builder & Contractor the Other Pt. The Purchaser – Plot of land at George St., including co extensive moieties of George St., & Grove Rd., SW & SE by centre of Grove Rd., SW by centre of George St etc. re Indenture dated 1st May 1917 between Joseph BROOK 1st Pt & J T MARSDEN & Benjamin MARSDEN 2nd Pt and Ralph Talbot FOX 3rd Pt (Ref: 1933 89 526 172)
1933
Very complicated Deed regarding transfer of a mortgage – see samples:-




1934
Very complicated Deed regarding transfer of a mortgage – see samples (see 1933 165 372 144)


1935
Memorial of the WILL. Of Fredk William BRIGGS of Bernoden? Nr Glasgow dec’d 27/8/1934.. Mentions 10 houses No’s 8, 10, 12, 14, 16, 18, 20, 22, 24, 26 South Terrace, Horbury Rd., Ossett & 3 cottages 49, 51 & 53 Manor Rd., Ossett & his (Testators) 1/3 undivided share of property known as South Place, Horbury Rd.,consisting of 3 houses Nos 21, 23 & 25 Horbury Rd., & 4 cottages with gardens & outbuildings belonging thereto and adjoining croft of land and all real estate if any in the West Riding of York.Agnes BRIGGS signed (Ref: 1935 177 668 215)

Old photo of South Place yard, across from Highfield House
(adapted from a photo on the OTTA group on facebook)
MY GRANDCHILDREN William and Abbie-gail BARRACLOUGH,Gt. Granchildren of Doris CARTER

LAND CHANGES 1925 – 1935

LAND CHANGES 1927 – 1935

STORRS HILL CORNER TO DENTON LANE

1936
Dewsbury & West Riding Building Society 1st Pt Martha Robertshaw, Arthur William & Melancthon ROBERTSHAW & Mary Eliza FIRTH, wife of Stanley, (Vendors).2nd Pt. Edward SMITH of Green Lea, Healey Rd.,( Purchaser). 3rd Pt. Plot of land at Storrs Hill Rd., described in conveyance dated 29/7/1935. Bounded N by intended Rd 26′ wide E by intended back Rd. 10′ wide S by other properties of the Vendors & W by Storrs Hill Rd., and also dwelling erected on plot. SEE PLAN (Ref: 1936 165 118 46)

Martha ROBERTSHAW, Arthur William & Melancthon ROBERTSHAW & Mary Eliza FIRTH, 1st Pt, DEWSBURY BUILDING SOCIETY 2nd Pt. George Arthur HOPKINSON, Master Joiner & Gladys Rose his wife, Field Place, Dewsbury Rd., Wakefield , Plot of land fronting to Storrs Hill Rd.,, part of a larger plot. (Ref: 1936 188 531 173)
Martha ROBERTSHAW, Arthur William & Melancthon ROBERTSHAW & Mary Eliza FIRTH, 1st Pt David Pliny MOSBY of 67 Westgate Wakefield, Solicitor, Sir Leonard James COATES of St. Mary’s Weetwood lane, Headingley, Leeds, Knight, & Ernest SUGDEN of East parade, Leeds, Chartered Accountant of Mortgages the Other Pt. Plot of land on E side of Storrs Hill Rd., bounded N by Rev Joseph Robert COWGILL & others E in part by the latter & others & part by property of ???????S by property invested in Martha ROBERTSHAW as tenant for life, under the WILL of Walter ROBERTSHAW and part by Edward SMITH and W by Charles H. AKEHURST and Ethel his wife in part and part by A HOPKINSON & G ROSE etc., & 24 semi detached messuages, known as Numbers 1 to 24 FALCON AVENUE. (Ref: 1936 199 509 144)
1937
Material relating to Broom Croft, (connected to 1933 165 372 144)





(& connected to 1934 44 1130 39) (Ref: 1937 28 765 276)
DEED – NEW MORTGAGE regarding the previous transactions,

Ref: 1937 28 767 277
David Pliny MOSBY; Sir Leonard James COATES & Ernest SUGDEN 1st Pt Martha ROBERTSHAW, Arthur William & Melancthon ROBERTSHAW & Mary Eliza FIRTH 2nd Pt Mary Ellen BURDETT 13 Friargate, Wakefield, Spinster 3rd Pt. Plot of land fronting onto Storrs Hill Rd.,N by Rev’d COWGILL & Others. E by other property of Vendors S by the New Street 26′ wide FALCON AVENUE & W by Storrs Hill Rd., 1187 sq yds, with all rights etc…. (Ref: 1937 62 19 5)
1938
Change of name James BURROWS and Fred BURROWS 1st Pt. J & F BURROWS LTD. The Other Pt- Victoria Mills. (Ref: 1938 88 62 26)
Memorial of WILL of George HUTCHINSON, Builder & Contractor of Hawthorne Cottage, Horbury Rd., Ossett Dec’d 21st April 1938. All his Real Estate, Hawthorne Cottage with stone yard & 3 houses 3, 5 & 7 Hawthorne Terrace, Horbury Rd., & House & shop No 19 Horbury Rd.,and 4 houses in Broom croft, off South Street. (Ref: 1938 111 327 120)
Purchase of Copyhold for land on Horbury Rd.,re. Nathan & M J GIGALL see samples (mentions death of Nathan) (Ref: 1939 148 1128 373)



1949 1 901 455
David ELLIS of Storrs Hill House, Gent, the Vendor the 1st Pt and the Trustees of the RC Diocese of Leeds Rt Rev. Henry John POSKITT of Bishop’s House, City of Leeds, RC Bishop of Leeds.( The Rt Rev. – H J POSKITT; William HAWKSWELL; Very Rev Kexin HENEGE; Rt Rev John DUNN & the Rev Joseph Mc SHANE) the Other. All that piece, parcel of land situate at Storrs Hill in Ossett 4583 sq yds bounded NW by Storrs Hill, NE & SE by other property of David ELLIS SW by other property of the Purchaser which said piece of land formed part of an allotment cont. 1a 5p on the 1807 Tithe Awarded to James BRIGGS and also all those 12 cottages or dwellings called the OLD ROW (with all the warehouses, stables outbldgs now standing on plan edged with a red line etc..) (Ref: 1949 1 901 455)

1949 1 901 455

LAND CHANGES 1937 – 1949


STORRS HILL CORNER TO DENTON LANE

1950
Deed of Gift on behalf of Alfred Jack ELLIS, 2 Sowood Villas, Sowood Rd., Ossett, Motor Engineer. 1st Jan 1950. Parties Ada ELLIS 1st Pt Alfred Jack ELLIS the Other Pt. Ada ELLIS wife of Alfred Ernest ELLIS (the Grantor) 1st Pt and Alfred Jack ELLIS (the Donor), the son of the Grantor. Land referred to: Part of a property conveyed to the Grantor 16/3/1932 between Cyril WHITESIDE & John JOHNSON the 1st Pt and the Grantor the Other Pt. Situate, having frontage to Storrs Hill Rd., Ossett 595 sq yds. together with all rights etc. SCHEDULE of Conveyance. 1894 Feb. William WILCOCK, statutory declaration by Bransby GREENWOOD. May 29th Acknowledgement Messrs A & D ELLIS (1) William WILCOCK (2). 1898 Feb Transfer of mortgage to Anne THOMPSON & John Henry WHITEHEAD. ( Ref: 1950 43 855 395) 1904. Conveyance John HARROP (1) Walter ROBERTSHAW (2) William WILCOCK (3). 1932 CONVEYANCE Cyril WHITESIDE & John JOHNSON (1) Ada ELLIS (2)

1951
Ethel Miriam ELLIS ( formerly of Storrs Hill House) Widow, David Arthur ELLIS both of Canadian Villas, Station Rd., Ossett; Margaret SMITH (formerly ELLIS of Storrs Hill House) Red House Middlestown. Re. 9 Horbury Rd., Storrs Hill (Ref: 1951 142 353 148) NB DAVID ELLIS DIED 18/3/1951) WILL DATED 30/7/1948)
STORRS HILL HOUSE

Below is a recent photo of Storrs Hill Rd., in the region of where Storrs Hill house was situated


AERIAL VIEWS 1951 (Britain from above website)
(My thanks to Neville ASHBY for directing me to the site !!)



1953
Sale of House and shop (same names as 1951 142 353 148) to Leonard ELLIS, 9 Storrs Hill Rd. Grocer and Sub Postmaster SEE DRAWING (Ref 1953 192 610 286)


date unknown

1953

William MYERS, 101 Lawrence St., Leeds, Shop Manager 1st Pt The Vendor, Frank TOWNEND, Commercial Traveller and Emma TOWNEND of 55 Sowood Avenue, Ossett. (Ref: 198 281 123) (see (Ref: 1925 76 187 69)
Ethel Miriam ELLIS, widow , David Arthur ELLIS & Margaret SMITH (formerly ELLIS) 1st Pt. Marjorie TURNER, widow, the Other Pt. No 1 Ellis’s Yard Storrs Hill . All that land with dwelling house ( No 1 Ellis Yd) £175 (David Ellis died 18/3/1950) ( 1955 6 795 393) SEE TRACING


Ethel Miriam ELLIS, widow, David Arthur ELLIS & Margaret SMITH (formerly ELLIS) 1st Pt; Harry Arthur PLACE & Winifred Ellen PLACE the Other Pt. Piece of land fronting on to Storrs Hill Rd., with a dwelling. No 60 Storrs hill Rd. with outbuildings etc. £200 ( 1955 72 779 331) . SEE SCANNED

J & F BURROWS Ltd., 1st Pt and Mayor and Corporation of Ossett the Other Pt. (Ref: 1955 79 404 191)


Ethel May ELLIS, formerly of Southfield House, Manor Rd., but now of ‘Delroy’ Sowood Avenue, Ossett, Spinster 1st Pt. Leslie LYNCH of 41 Gas Works Row, Healey, Miner the Other Pt. (Ref: 1955 211 1043 484)


Alfred Ernest ELLIS of Manorfield Drive, Horbury1st Pt., Kathleen BERRY of Lee Brigg Nr Wakefield the Other Pt (!955 214 830 374)

1956 Sample taken from another Deed showing the Street Name change

Ethel Miriam ELLIS of Canadian Villas, Ossett, David Arthur ELLIS of Redcliffe Queens Drive Ossett; Margaret SMITH Red House Middlestown (wife of Frank Riley SMITH) the Vendors: George Albert CALLAGHAN of Victoria St. Ossett, Civil Servant, The Purchaser 21 Storrs Hill Rd., (see drawing) (Ref: 1957 176 174 70)

LAND CHANGES 1950 —- o – _ –
STORRS HILL CORNER TO DENTON LANE

This Project is still ongoing, there are still many pieces missing from the ‘jigsaw’. I will endeavour to find them !!!!!
Joan P Smith 26th February 2018
joanpsmithworth@gmail.com





















